Dům, Nejdek, Pozorka
Rád bych vám nabídl jedinečnou příležitost k pořízení rodinného domu v obci Pozorka u Nejdku. Tento dům, postavený kolem roku 1930, stojí v klidné ulici a v průběhu let prošel různými dílčími rekonstrukcemi. I když je dům v současné době plně obyvatelný, neodpovídá běžnému standardu dnešní doby, ať už z hlediska dispozice, vzhledu či technologie. Nyní čeká na svého nového majitele, který jej zrekonstruuje a přizpůsobí svým potřebám a vkusu.
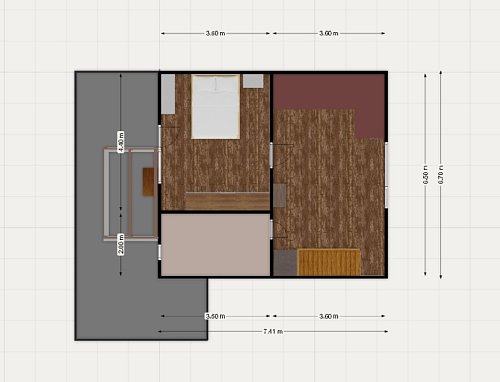
Dům je situován na pozemku o rozloze 298 m², z toho 193 m² tvoří zastavěná plocha a 105 m² zahrnuje předzahrádku a dvorek za domem. Vstup do domu je po třech schodech vedoucích do předsíně, kde nalezneme vestavnou skříň a samostatné WC. Koupelna je vybavená sprchovým koutem a umožňuje průchod do zadní chodby a na dvorek.
Z předsíně se vstupuje do prostorného obývacího pokoje s krbem, který je ideálním místem pro rodinná setkání. Z obývacího pokoje se dále dostaneme do menšího zadního pokoje. Další dveře vedou do kuchyně, kde najdete starší kuchyňskou linku a vstup do spíže. Z kuchyně je také přístupná malá chodbička se schodištěm, která vede do patra a také do uhelny vedle domu. Ve sklepě, který je přístupný z této chodbičky, je umístěn kotel na uhlí.
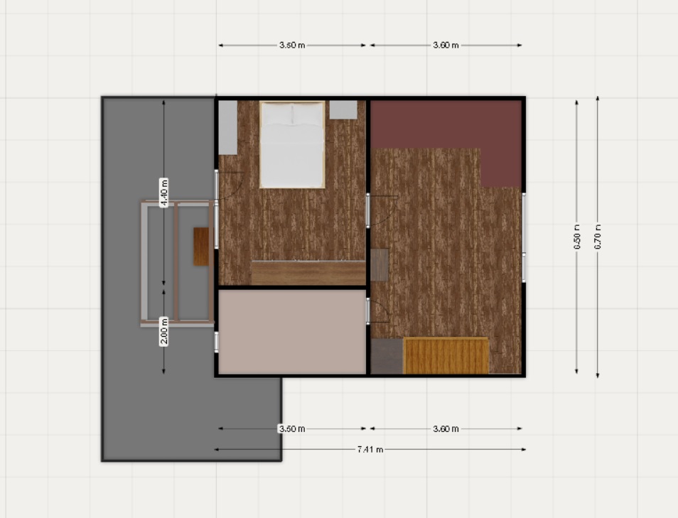
V patře se nachází velká předsíň, malá místnost se zkosenou střechou a prostorná ložnice. Z ložnice je pak přístup na velkou terasu s kočičí voliérou.
Součástí prodeje je i veliká zahrada o rozloze 662 m², která se nachází přes ulici. Na zahradě je umístěna velká garáž s dílnou o rozloze 49 m². Zahrada je plná vzácných dřevin, které zde zasadil bývalý majitel, sběratel, ačkoliv zahrada i garáž s dílnou stejně jako samotný dům vyžadují péči a údržbu, aby opět dosáhly svého plného potenciálu.
Pozorka je malebná obec ležící v blízkosti města Nejdek, s vynikající dostupností do Karlových Varů. Tato lokalita je oblíbená pro svou blízkost k přírodě i Krušným horám, což nabízí nespočet možností pro turistiku, cykloturistiku a další venkovní aktivity. Zároveň poskytuje klidné a přátelské prostředí, ideální pro rodinné bydlení.
Tento dům představuje výjimečnou příležitost pro ty, kteří hledají klidné bydlení v krásném prostředí s historií a potenciálem pro rekonstrukci dle vlastních představ. Pokud vás tato nemovitost zaujala, neváhejte nás kontaktovat pro více informací nebo pro domluvení osobní prohlídky. Těšíme se na vaši návštěvu a jsme připraveni vám pomoci s realizací vašich plánů na ideální domov.
Líbí se Vám byt a potřebujete více informací?
Tak neváhejte a zavolejte mi nebo napište, a objednejte si prohlídku!

Narodil jsem se v Karlových Varech a celý život jsem s tímto krajem pevně spojený. Tady jsem vyrostl, postavili jsme si zde domov, vychovali děti a dnes tady trávíme čas i s našimi vnučkami. Karlovy Vary a jejich okolí dobře znám, mám to tady rád a právě proto mě těší pomáhat lidem s prodejem a hledáním domova právě v regionu, který je mi blízký.
Než jsem vstoupil do světa realit, působil jsem v několika obchodních společnostech. Ať už jsem dělal jakoukoliv práci, vždy pro mě byla důležitá slušnost, férové jednání a profesionální přístup ke klientům. Věřím totiž, že lidé si nakonec nejvíce pamatují to, jak se vedle vás cítili.
Realitám se naplno věnuji od roku 2017. Začátky nebyly jednoduché, ale právě díky osobnímu přístupu, poctivé práci a důrazu na kvalitu se mi postupně podařilo vybudovat jméno, díky kterému mě dnes klienti často oslovují na základě doporučení nebo referencí. A toho si opravdu vážím.
Práce realitního makléře mě baví dodnes stejně jako na začátku — možná ještě víc. Každá nemovitost je jiná a za každým prodejem se skrývá lidský příběh. Někdy radostný, někdy složitý, ale vždy důležitý. I proto se nesnažím být jen „člověkem, který prodá byt“. Chci být partnerem, na kterého se klient může spolehnout a který ho celým procesem bezpečně provede.
Velký důraz kladu na moderní a profesionální prezentaci nemovitostí. Spolupracuji s profesionálním fotografem, vytvářím videoprohlídky, využívám záběry z dronu, připravuji vlastní webové stránky nemovitostí, 3D půdorysy, online propagaci i prezentaci na sociálních sítích. U některých zakázek využívám také online aukce nebo speciální marketingové kampaně. Ne proto, aby vše vypadalo „hezky“, ale proto, že kvalitní prezentace má přímý vliv na zájem kupujících i výslednou prodejní cenu.
Za svou práci jsem během let získal řadu ocenění — například Makléř regionu, Makléř republiky nebo ocenění v soutěži Realiťák roku. V letech 2022 a 2023 jsem se stal nejúspěšnějším makléřem společnosti M&M reality v celé České republice. Těchto úspěchů si vážím, ale upřímně — největší hodnotu pro mě mají spokojení klienti, kteří se vracejí nebo mě doporučují dál svým známým a rodině.
Právě proto vznikly i tyto stránky. Chtěl jsem vytvořit místo, kde lidé najdou nejen nabídky nemovitostí, ale také informace, rady a pohled do zákulisí realitního světa. Protože když dva dělají stejnou práci, nikdy ji nedělají stejně. A u realit to platí dvojnásob.
Prodej nemovitosti totiž není jen podpis smlouvy. Často jde o velkou životní změnu, důležité rozhodnutí a krok, který člověk neřeší každý den. A právě proto věřím, že si zaslouží lidský přístup, klidnou komunikaci a maximální péči.
Záleží mi na dobře odvedené práci, na důvěře klientů i na svém jménu. A největší odměnou jsou pro mě spokojení lidé, kteří mají pocit, že na celý proces nebyli sami.
Pokud jste dočetli až sem, děkuji vám za váš čas. A pokud vás cokoliv zajímá, budu rád, když se ozvete. Rád se s vámi sejdu osobně — třeba u kávy — a společně probereme vše, co budete potřebovat vědět o prodeji vaší nemovitosti.
Povinné údaje:
Jméno: Boris Musil
Místo podnikání: Děpoltovická 369, 36001 Otovice
IČO: 468 70 474, DIČ: **0419****
Datová schránka: z3muun6
Vznik živnostenského oprávnění: 9.9.1992
Vznik vázané živnosti realitní zprostředkování: 18.6.2020
Živnost přidělil: Magistrát města Karlovy Vary